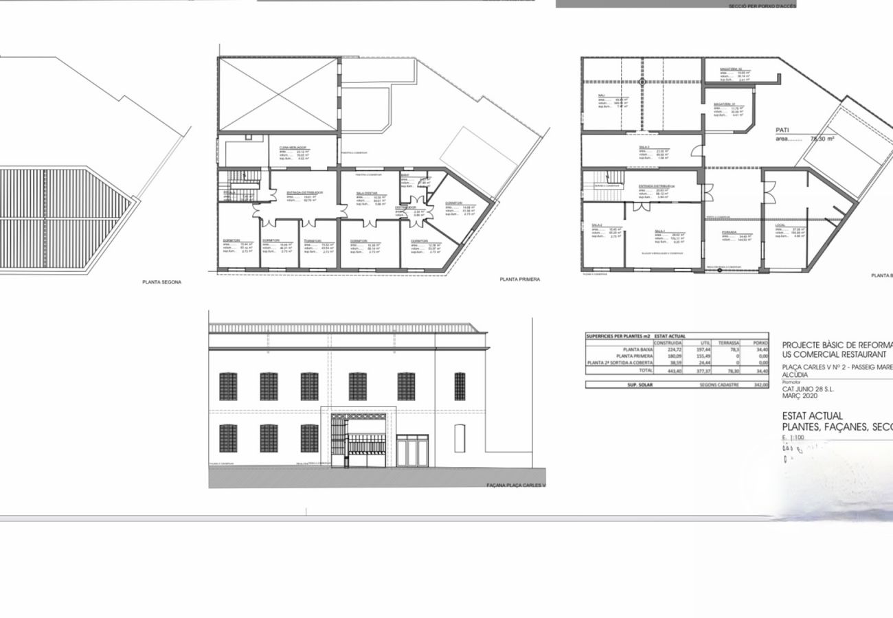
- 480 m² 480 m²
Disponibilité et prix
Caractéristiques principales
480 m²
Général
480 m² Logement
Carte et distances
2 375 000 €